AI isn’t coming for architects. It’s making them unstoppable.
What used to take hours can now be done in minutes (or even seconds) thanks to a new wave of AI tools built for architects and interior designers.
They can quickly generate CAD models, floor plans, optimize layouts, create photorealistic 3D renderings, automate documentation and feasibility reports, and much more.
But while plenty of AI-powered tools claim to revolutionize the AEC industry, not all of them live up to that promise.
So we did the hard work for you.
In this guide, you’ll find the best AI tools that truly change how professionals design, visualize, and sell their ideas.
Let's get right into it.
Best for quick and easy photorealistic renders

MyArchitectAI is an AI rendering tool loved by architects and interior designers for its speed, ease of use, and visual finesse.
Upload a CAD export, 2D sketch, or line drawing, and MyArchitectAI will turn it into a photorealistic render in 10 seconds.
MyArchitectAI also lets you experiment with different aesthetics using the Style Transfer mode, which combines your design with a reference image to create a unique concept.
After creating the initial render, you can use the AI editing mode to apply changes (change materials and lighting, add or remove objects, etc.) without having to re-render the whole scene.
Lastly, to add a final polish to your render, use the AI Enhancer, which will automatically refine textures, lighting effects, and vegetation, without spending hours in Photoshop.
Pros
Cons
Pricing
MyAchitectAI has a free trial that gives you 10 renders, 10 edits, and standard-quality outputs. Pro plan includes unlimited renders, unlimited edits, 4k quality downloads, and costs $29/month or $249/year.
Best for feasibility studies (unit mix, parking, and zoning)

With TestFit, you set parameters (such as zoning, setbacks, parking ratios, or unit mix), and the AI tool will generate multiple site and massing layouts. Each option comes with real-time feedback on yield, density, and constructability, helping you determine if a project is practicable before committing resources to it. It can also suggest layouts that enhance building performance.
Pros
Cons
Pricing
Related reading: AI tools for BIM
Best for early-stage feasibility design
.avif)
Spacio helps architects design, analyze, and visualize structured building proposals in minutes, thanks to its unique combination of generative AI and flexible free-form editing.
The tool works with major BIM software like Rhino and IFC, and supports file formats such as .obj, .dxf, and .csv.
Spacio is incredibly user-friendly and intuitive, making it accessible for professionals at any skill level.
Pros
Cons
Pricing
Starts at $299/month per user.
Best for generating floor plans and early-stage design from briefs
.avif)
Maket is one of the most popular AI tools for floor plan design.
It helps architects and builders generate conceptual layouts, floor plans, and massing options in minutes. Its AI engine adapts to constraints (such as local codes, environmental factors, and client preferences), saving you lots of time on feasibility studies and schematic design.
Pros
Cons
Pricing
Best for generating and evaluating compliant floor plans
.avif)
Finch 3D is an AI tool that helps architects and urban planners optimize early-stage building layouts. Just feed your constraints, and Finch will give you multiple design variations. It also provides real-time performance metrics (such as space utilization, energy efficiency, etc), so you can detect problems early.
Pros
Cons
Pricing
Best for generating conceptual designs and mood boards
.avif)
Midjourney is one of the most advanced text-to-image AI generators on the market and can prove invaluable in the early conceptualization phase of the project.
The tool creates conceptual images based on user-provided text prompts, offering valuable reference images for projects. You can also upload your existing images and edit them using text descriptions (image prompt feature) or use your own designs to influence the style of images you want Midjourney to generate (reference image feature).
We wrote a separate guide on writing high-performing Midjourney prompts.
Pros
Cons
Pricing
Best for turning architectural renders into animations and video fly-throughs
.avif)
Runway's AI engine lets you turn static renders into beautiful animations based on just a text prompt. No technical skills needed.
Simply upload your render, describe the camera motion, pick the video duration (5s or 10s), and press "generate." It usually takes under a minute to generate your animation.
Aside from its core animation feature, Runway also offers video editing tools, image and audio generation, and other tools for creatives, also outside of the AEC space.
Pros
Cons
Pricing
Best for AI-powered site analysis
.avif)
When it comes to AI design tools for architects and real estate developers for assessing site potential, Archistar is a great option. This generative design tool uses site and environmental data to provide feedback on what’s possible on a plot before heavy modeling starts.
Pros
Cons
Pricing
Best for architects working on multi-family and mixed-use projects
.avif)
ArkDesign is an AI-powered architecture software that automates schematic design, from setting up constraints to generating optimized floor plans. With code compliance built into its generation engine, ArkDesign is excellent for multi-family or mixed-use projects characterized by more complicated zoning and building codes.
Pros
Cons
Pricing
Best for generative systems automation (structure, MEP, layouts)
.avif)
Hypar is one of the best AI design tools for architects as it automates and accelerates building design. Just define constraints, and Hypar will generate building geometries and systems quickly, allowing you to test multiple iterations. You can even describe a building, and it will generate floor plans, structure, and more.
Pros
Cons
Pricing
Public pricing is not displayed on the website.
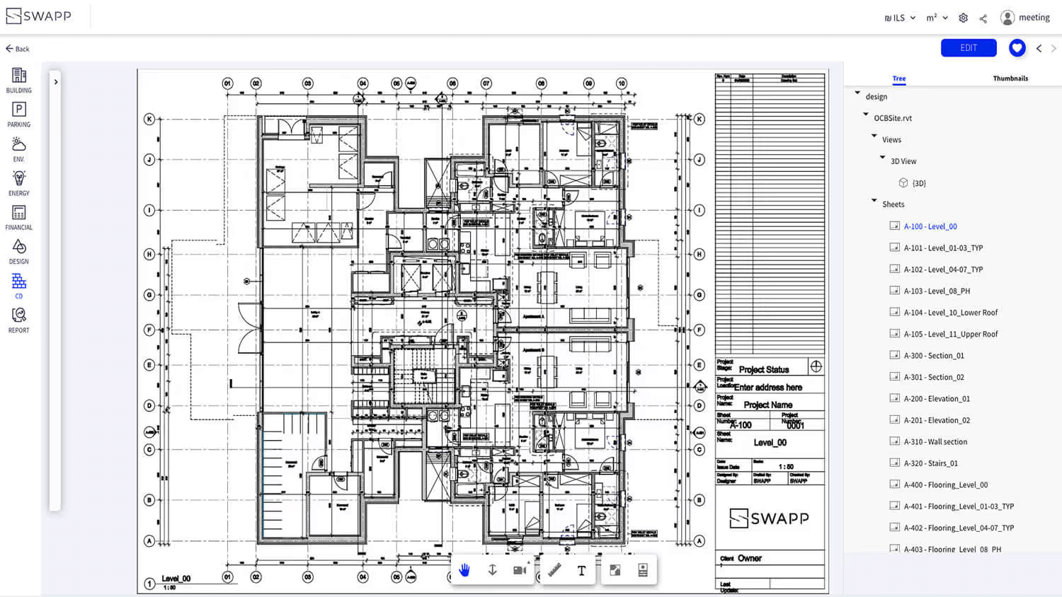
Best for automating architectural documentation (plans, schedules, sheets)
.avif)
Swapp is an AI platform that automates the manual documentation work that often consumes huge amounts of architects' time, such as tagging, annotation, and sheet organization. It works in the background to produce construction documents, letting you focus on project management.
Pros
Cons
Pricing
Custom pricing after talking to sales.
Best for converting 2D drawings (PDF/DWG) into BIM models
.avif)
WiseBIM lets you upload a 2D drawing, set the correct scale, and apply a few parameters (such as wall heights), and the AI will generate high-quality Revit or BIM elements for you.
If you need to digitize existing drawings, accelerate modeling, or convert legacy data into usable BIM form, this AI tool will save you tons of time.
Pros
Cons
Pricing
Best for automating repetitive tasks in Revit
.avif)
Pele is a Revit AI plugin that helps you improve your productivity by automating and streamlining manual tasks.
This AI assistant tool lets you write your request in a simple text prompt, and it will work on it while you get to focus on high-value tasks.
Pros:
Cons:
Pricing
Free trial for the first 20 prompts; then, $20 for 250 prompts.
Best for style-driven renders with geometry-aware AI control
.avif)
Veras is an AI rendering software that allows you to import your models from SketchUp, Revit, Rhino, Archicad, or Vectorworks, and visualize them easily just by using text prompts and simple controls. No lighting or texturing needed.
Veras lets you create both precise renders and loose, creative concepts thanks to its many creative controls, including custom prompts, geometry and material override, render selection, and rendering from the same seed.
Since early 2025, Veras is part of the Chaos ecosystem that includes V-Ray, Enscape, and other archviz tools.
Pros
Cons
Pricing
Best for real-time rendering and animations
.avif)
D5 Render combines the precision of ray tracing with the speed of AI technology to help architects and designers turn 3D models into photorealistic images, animations, and immersive walkthroughs.
It offers AI features such as AI-generated material texture maps, AI enhancer, style transfer, atmosphere match, inpainting, text to 3D, and more.
Pros
Cons
Pricing
Best for AI-powered render enhancement
.avif)
Magnific is one of the top AI render enhancers, both for architectural and interior design use cases.
Instead of spending hours perfecting your renders in Photoshop, Magnific will add a final layer of details, refining textures, lighting, and reflections, making your architectural and interior design renders more realistic in seconds.
Pros
Cons
Pricing
Related: best Magnific AI alternatives.
Best for optimizing daylight, energy, and cost-performance tradeoffs
.avif)
Cove is an AI performance analysis tool whose design workflows include energy modelling, daylight & glare analysis, embodied carbon assessment, cost optimization, and building compliance.
Design teams can run simulations to see how changes in orientation, glazing, shading, HVAC systems, and more will affect building performance.
Pros
Cons
Pricing
Best for restyling and virtual staging of interior spaces
.avif)
InteriorAI is an easy-to-use web app for restyling, decluttering, and furnishing interior spaces.
Simply upload an image or a simple room layout. Then, with the help of AI techniques like deep learning and computer vision, the tool will give you stunning interiors, allowing you to try out different color schemes, furniture styles, lighting, and decor.
Pros
Cons
Pricing
The most efficient studios are already building AI architecture toolstacks that cover the entire workflow: from early concepts and feasibility, all the way to photorealistic visualization and performance optimization.
Here’s how to think about building yours:
1. Concept and ideation - Kick off your design process with Maket or Midjourney. These tools are perfect for generating ideas, exploring moods, and quickly turning briefs into visual starting points.
2. Feasibility and site analysis - Before modeling too deeply, bring in TestFit, Spacio, or Archistar to test different massing options, parking layouts, and zoning constraints.
3. Design development and documentation - Automate repetitive tasks from Revit using Pele AI, or WiseBIM to convert 2D PDFs and DWGs into clean BIM models.
4. Visualization - For quick presentation-ready visuals, tools like MyArchitectAI and Veras are your go-tos. Both will generate beautiful, geometry-accurate renders without complex lighting or texturing setups.
Remember, the goal isn’t to replace your current workflow. It’s to make it more efficient.