L'IA résout enfin les problèmes quotidiens liés au BIM auxquels vous êtes confrontés depuis des années. Pas les démos tape-à-l'œil, mais le travail ennuyeux et répétitif qui détruit discrètement votre emploi du temps.
Nous avons dépassé la phase expérimentale. Outils d'IA modernes peut nettoyer les nuages de points, transformer des croquis en données BIM structurées et même générer des plans de bâtiments complets conformes au code.
Dans ce guide, nous allons passer en revue les principaux cas d'utilisation de l'IA dans le BIM, les outils qui valent réellement la peine d'être utilisés, la manière dont ils améliorent les workflow réels et leur place dans votre processus.
Allons-y.
L'IA BIM n'est pas simplement une autre tendance technologique. Il apporte des améliorations mesurables à la façon dont vous concevez, coordonnez, gérez et documentez les bâtiments.
Vous souvenez-vous d'avoir passé des heures à étiqueter les murs, les portes et les fenêtres de votre maquette ? Chaque élément doit être classé avant que votre modèle ne devienne une donnée BIM utile.
Les algorithmes d'apprentissage automatique analysent votre géométrie 3D et classent automatiquement les éléments de construction selon les normes IFC. Vous devez vous concentrer sur la conception elle-même et laisser l'IA gérer la classification BIM en un clic. Le la précision atteint 95 % sur les éléments standard. Les géométries personnalisées complexes peuvent nécessiter une révision manuelle, mais vous gagnez toujours des heures par modèle.
Les données des nuages de points sont incroyablement riches et incroyablement compliquées. Un scan laser typique d'un bâtiment de 10 000 pieds carrés génère environ 500 millions de points de données. Trouver les murs dans ce chaos impliquait auparavant des semaines de traçage manuel.
Les algorithmes d'apprentissage basés sur l'IA Scan-to-BIM peuvent identifier automatiquement les éléments architecturaux, voir des modèles dans la densité et l'orientation des points, trouver des lacunes et identifier correctement les formes. Certains outils, comme Aurivus, vont encore plus loin en ajoutant une détection spécialisée pour les systèmes MEP.
La détection standard des conflits génère des centaines de faux positifs que vous devez trier manuellement. À l'inverse, la détection des conflits basée sur l'IA tire des enseignements des projets antérieurs pour identifier ce qui compte réellement et savoir s'il s'agit d'un conflit structurel grave ou d'un problème mineur que les sous-traitants résolvent généralement sur site.
L'IA et le BIM travaillent ensemble ici, donc au lieu de 500 affrontements aléatoires, vous obtenez 20 problèmes prioritaires qui nécessitent une attention immédiate.
L'IA pour le BIM optimise tout ce qui compte le plus pour votre projet, qu'il s'agisse d'un ensoleillement optimal ou de l'aménagement des parkings. Indiquez au système les limites de votre site, les marges de retrait, les exigences de zonage, les ratios de stationnement et les exigences en matière de composition des unités. Les algorithmes génèrent toutes les configurations possibles qui répondent à ces contraintes. TestFit, par exemple, peut produire 3 000 plans de site valides en moins de 10 secondes sur un ordinateur portable standard.
Votre modèle BIM contient des modèles qui prédisent les problèmes futurs. L'IA dans la modélisation BIM peut détecter ces modèles en comparant votre conception à des milliers de projets achevés.
Peut-être que votre combinaison particulière de hauteur de plafond et de taille de conduit entraîne régulièrement des problèmes de coordination. Ou les détails de votre mur-rideau ressemblent à ceux qui nécessitent fréquemment des modifications sur place. Vous recevrez des alertes précoces sur les problèmes des mois avant qu'ils ne surviennent, avec des recommandations spécifiques pour la prévention.

BricsCAD BIM fournit l'automatisation la plus pratique pour la modélisation quotidienne. Lorsque vous l'exécutez, le système analyse chaque solide de votre modèle, en vérifiant les proportions, les connexions et le contexte pour déterminer ce que représente chaque élément.
Ce qui distingue BricsCAD, c'est la fonction PROPAGATE. Modélisez une fois une jonction complexe entre le mur et le sol avec toutes les accumulations de couches et les ruptures thermiques appropriées. PROPAGATE détecte toutes les conditions similaires dans votre bâtiment et reproduit automatiquement ces informations. Il gère également les variations de manière intelligente. Si une jonction présente un angle ou une dimension légèrement différent, cet outil BIM AI ajuste les détails en conséquence.

Aurivus est spécialisé dans la mise en œuvre immédiate des nuages de points. Chargez vos données de numérisation et l'IA commence à identifier les objets automatiquement. Le système détecte même les meubles et les marque comme des objets encombrants dissimulables.
L'intégration de Revit est le point fort de cet outil BIM basé sur l'IA. Les éléments détectés par l'IA sont convertis directement en familles Revit natives. Pour les projets impliquant de nombreux MEP, Aurivus peut réduire le temps de modélisation jusqu'à 70 %. Une usine pharmaceutique dotée de milliers de tuyaux dont la modélisation manuelle prendrait des mois peut être traitée en deux semaines.

PointCab adopte une approche légèrement différente de l'IA scan-to-BIM. Vous importez des données de nuages de points, utilisez les outils de vectorisation et de sectionnement d'Origins et, avec le plugin dédié, vous envoyez la géométrie sélectionnée directement dans Revit, ArchiCAD ou BricsCAD. Ce logiciel est indépendant de la plateforme ; il exporte vers des formats CAD/BIM et prend en charge plusieurs systèmes.

TestFit modifie rapidement vos workflow. Ajustez le retrait de 5 pieds et regardez des centaines d'options se reconfigurer instantanément. Changez la combinaison d'unités 60/40 d'une chambre/deux chambres à coucher à 50/50 et consultez les mises en page mises à jour en temps réel. Chaque option affiche des chiffres précis, par exemple 186 unités, 279 places de stationnement, 1,2 million de coûts de construction, 18 % de retour sur investissement.
TestFit a récemment ajouté une analyse des transactions basée sur l'IA. Entrez le coût de votre terrain, votre budget de construction et des détails tels que les loyers cibles. Le système identifie les configurations réellement rentables.

Autodesk Forma (la plateforme qui a absorbé Spacemaker) fonctionne à l'échelle de la ville. Alors que TestFit se concentre sur les colis individuels, Forma analyse des quartiers entiers. La plateforme BIM alimentée par l'IA exécute des centaines de simulations environnementales, suit les ombres tout au long de l'année, prédit les niveaux de bruit des routes voisines et suggère des orientations et des hauteurs optimales des bâtiments en fonction de tous les facteurs connexes combinés.
L'intégration à Revit signifie que votre analyse environnementale reste connectée à votre modèle BIM. Les modifications apportées à Revit déclenchent automatiquement une nouvelle analyse dans Forma.

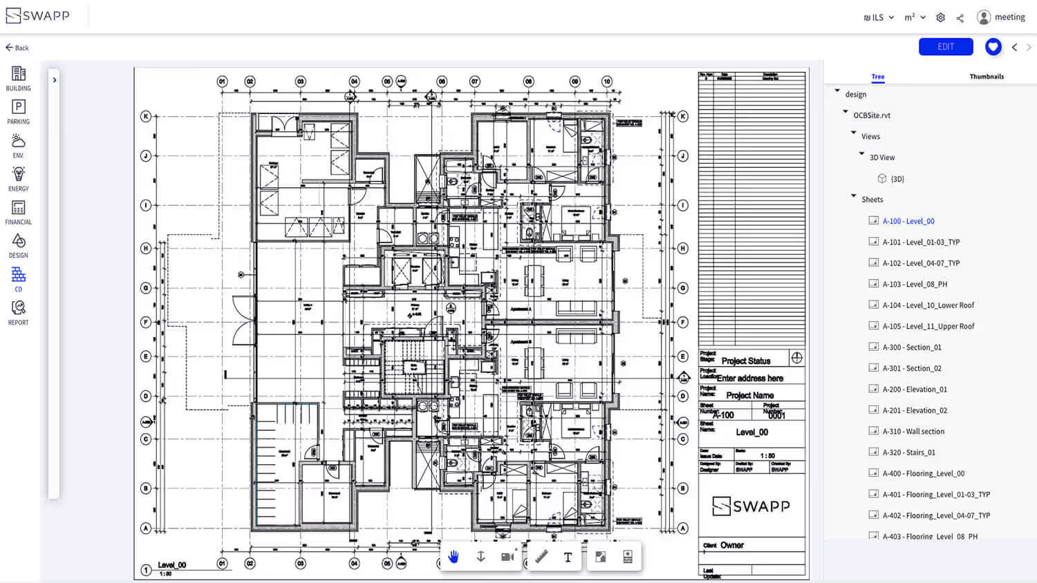
SWAPP s'attaque à la tâche la plus fastidieuse de l'architecture : la production de documents de construction. Fournissez-lui votre modèle 3D et l'IA de SWAPP génère des ensembles de dessins complets, y compris les sections, les élévations, les détails, les horaires des portes, les calendriers de finition, etc.
Le BIM et l'IA travaillent ensemble ici pour comprendre les conventions de dessin. Le système vérifie même les codes du bâtiment locaux. Vous travaillez sur un projet en Californie ? La SWAPP applique les exigences du titre 24.
Les gains de temps sont impressionnants. Un immeuble de bureaux de 50 000 pieds carrés nécessite généralement plus de 100 feuilles de documents de construction. Leur production manuelle prend 3 à 4 semaines. SWAPP génère le même ensemble en quelques heures, prêt à être révisé et affiné par un humain. Il permet de réduire le temps de documentation jusqu'à 70 %.

Autodesk BIM 360 utilise l'apprentissage automatique dans l'ensemble de votre portefeuille de projets. Son logiciel AI BIM examine les modèles d'autres projets afin de prévoir les problèmes du vôtre. Si des projets comportant des systèmes structurels et des configurations mécaniques similaires rencontrent régulièrement des problèmes de coordination dans le plénum du plafond, vous êtes averti lors de la conception.
La gestion des documents devient également intelligente. L'IA permet un traitement plus intelligent des soumissions et des demandes d'information, aidant ainsi les équipes à identifier les demandes de renseignements nécessitant des réponses immédiates. Les listes de contrôle qualité sont préremplies en fonction du travail spécifique inspecté.

Procore utilise l'apprentissage automatique pour analyser les données des projets et détecter les premiers signes de problèmes. Helix Intelligence trie les demandes d'information par métier, détecte les problèmes récurrents et montre comment votre projet se compare aux performances typiques du secteur. Avec des critères de référence tels qu'un délai de réponse moyen de 7,3 jours et un taux de révision et de renvoi de 9,2 % pour les soumissions, le système met en évidence les points de départ de votre processus.

OpenSpace crée un enregistrement visuel basé sur l'IA de l'avancement de la construction. Mais la véritable magie opère lorsque l'IA compare les images au fil du temps. Le système suit automatiquement le pourcentage d'achèvement dans les zones qu'il peut mesurer à partir des images capturées. Il identifie les écarts par rapport au modèle BIM, en mettant en évidence les endroits où les conditions de construction ne correspondent pas à l'intention de conception.

Autodesk Generative Design intègre l'IA directement dans Revit pour une optimisation détaillée de la conception. Définissez vos objectifs de conception, définissez des contraintes et laissez l'IA explorer les options à l'aide d'algorithmes génétiques. Chaque génération de solutions tire les leçons de la précédente et évolue vers des conceptions optimales.

Hypar, quant à elle, adopte une approche axée sur le code en matière d'IA et de BIM (mais prend également en charge des outils paramétriques/visuels). Si vous n'aimez pas cliquer sur les interfaces, vous pouvez écrire des algorithmes qui génèrent des bâtiments. La plateforme fournit des fonctions prédéfinies pour les éléments communs. Combinez-les par programmation pour créer des générateurs de bâtiments spécifiques à vos besoins.

Finch se concentre exclusivement sur l'optimisation des unités résidentielles dans des enveloppes de bâtiment définies. Donnez-lui le périmètre de votre bâtiment et son emplacement principal. Finch génère des configurations d'unités optimisées qui maximisent la surface louable tout en garantissant que chaque unité est réellement habitable.
L'intégration de Grasshopper est particulièrement performante. Les façades paramétriques répondent automatiquement à la disposition des unités : modifiez la combinaison des unités et la façade est mise à jour en conséquence.
En voici d'autres Outils Grasshopper AI pour aller encore plus loin dans votre workflow.

L'IA dans le BIM génère des bâtiments complets à partir des exigences de base. Il ne s'agit pas de modèles groupés, mais de conceptions détaillées intégrant des systèmes MEP et une conformité au code. Entrez votre programme, les contraintes du site et vos préférences de conception. L'IA crée un modèle BIM entièrement coordonné prêt à être développé.

Cet outil associe la génération de formulaires pilotée par l'IA à une analyse environnementale approfondie. La plateforme optimise simultanément l'apport solaire, le confort du vent, les vues et les coûts de construction. Chaque itération de conception inclut des mesures de performance détaillées.
Pour les projets urbains où la certification de durabilité est obligatoire, Digital Blue Foam peut réduire le temps d'itération de la conception de 80 %. L'IA du BIM garantit que chaque option répond aux exigences LEED ou WELL avant que vous ne perdiez du temps à la développer.
Si vous utilisez Revit, nous avons également rédigé un guide distinct dédié à Plug-ins d'IA pour Revit.
De nombreuses entreprises qui ont adopté l'IA très tôt constatent déjà de réels gains en termes de rapidité, de précision et de livraison. Voici quelques exemples tirés de témoignages de clients réels.
Les chiffres provenant d'entreprises utilisant des outils d'IA pour le BIM sont révélateurs de la réalité. Dans les workflow Scan-to-BIM, des plateformes telles qu'Aurivus affirment que le temps de modélisation peut être réduit d'environ 50 %, en fonction de la complexité du projet.
La classification BIM basée sur l'IA montre des gains similaires. Apparemment, les outils de classification automatisés de BricsCAD BIM réduisent considérablement le marquage manuel et l'attribution des éléments, les heures restantes étant consacrées à l'examen de géométries spécifiques que l'IA n'avait jamais vues auparavant.
Les utilisateurs de TestFit décrivent régulièrement les principales compressions dans les délais des études de faisabilité. Publié des études de cas montrent équipes achevant les premières études de rendement en une journée au lieu des deux semaines habituelles. Des entreprises telles que Ware Malcomb et BSB Design rapportent économie de 300 000 en heures non facturables au cours de la première année d'utilisation de l'IA dans le BIM.
Ce que toutes ces entreprises ont en commun, c'est qu'elles obtiennent plus de contrats simplement parce qu'elles peuvent répondre plus rapidement aux appels d'offres grâce à de meilleures informations.
L'IA ne se fatigue pas à 16 heures et ne rate rien après avoir regardé les écrans pendant 8 heures. Les entreprises utilisant des outils BIM basés sur l'IA signalent une réduction spectaculaire des erreurs de documentation.
Un récent étude de cas sur un projet résidentiel G+13 a quantifié l'impact : la détection précoce des conflits basée sur le BIM a permis d'éviter un seul conflit majeur d'une valeur d'environ 4 400 dollars américains en retouches.
Du côté du classement, recherche montre que l'IA peut distinguer les conflits significatifs du bruit avec une précision allant jusqu'à 95 %. L'effet cumulatif est simple : moins de surprises sur le terrain et moins de perturbations coûteuses en aval.
Les équipes utilisant des outils de planification pilotés par l'IA constatent des gains mesurables en termes de rendement et de performance environnementale.
À Copenhague, le projet pilote UN17 Village a utilisé Spacemaker (qui fait désormais partie d'Autodesk Forma) pour tester des alternatives de conception et a atteint 6 % plus d'appartements que leur programme de base. Le même processus a également amélioré l'état de la cour, en faisant passer l'exposition au soleil de zéro à un peu plus de six heures par jour.
Un Finlandais étude de cas a documenté 70 sites évalués au cours d'un projet pilote de quatre mois, le temps d'évaluation interne ayant été réduit d'environ 50 % par site.
Suivez ces conseils pour affiner vos workflow BIM et tirer le meilleur parti des outils alimentés par l'IA.
Chaque entreprise pense que son travail est entièrement personnalisé. Ensuite, ils consacrent environ 80 % de leur temps à des tâches répétitives.
Même les projets les plus personnalisés comportent des éléments standard. L'IA gère les parties répétitives afin que vous puissiez vous concentrer sur ce qui est réellement unique. Le bureau de Frank Gehry utilise des outils de conception informatique. Si l'IA fonctionne pour leurs géométries complexes, elle fonctionnera pour les vôtres.
Calculez le coût réel du travail manuel. Supposons que votre modélisateur vous coûte 35$ de l'heure. S'ils ne consacrent que 2 heures par semaine à des tâches que l'IA pourrait automatiser, cela représente 3 640$ par an. La plupart des outils BIM AI coûtent moins cher que cela par utilisateur.
Commencez par des options abordables qui résolvent des problèmes coûteux. Un investissement mensuel de 500$ est rentabilisé s'il permet d'économiser 14 heures par mois. Cela représente moins d'une étude de faisabilité.
Les premiers outils d'IA comportaient de fréquentes erreurs. Cependant, les logiciels AI BIM de génération actuelle utilisant l'apprentissage automatique moderne atteignent une précision de 90 à 95 % sur des éléments standard. Oui, vous devrez réviser et ajuster, mais corriger 5 % des classifications vaut mieux que d'en créer 100 % manuellement.
Plus important encore, les erreurs d'IA sont constantes et prévisibles. Les erreurs humaines aléatoires sont plus difficiles à détecter.
Les outils BIM AI ont besoin de données propres et organisées. Établissez des conventions de dénomination avant de mettre en œuvre l'IA. Configurez des fichiers modèles optimisés pour les workflow d'IA et incluez tous les composants, matériaux et paramètres standard dont vos outils d'IA ont besoin pour fonctionner correctement.
La plupart des outils BIM d'IA ne nécessitent pas de superordinateurs. TestFit fonctionne sur des ordinateurs portables standard. BricsCAD BIM répertorie des spécifications modestes (GPU VRAM de 8 Go, processeur standard) pour la modélisation de routine. Les outils basés sur le cloud comme Forma n'ont besoin que d'une bonne connexion Internet.
Les outils de numérisation vers BIM ont toutefois besoin de plus de puissance. Le traitement des nuages de points bénéficie d'un matériel plus robuste, par exemple 32 Go de RAM et plus et de cartes graphiques dédiées. Mais vous avez toujours affaire à des postes de travail de 3 000 à 5 000$, et non à des monstres de 10 000$ et plus.
Outils d'IA basés sur le cloud nécessitent une connexion Internet fiable. Disposer d'une connectivité de secours pour les échéances critiques. Téléchargez les principaux résultats localement en cas de problèmes de connexion.
Établissez des protocoles clairs pour le contenu généré par l'IA. Qui vérifie les classifications de l'IA ? Qui approuve les résultats de la conception générative ? Documentez ces décisions avant que des problèmes ne surviennent.
L'essentiel est de faire correspondre l'outil à vos problèmes réels. L'IA dans le BIM ne vise pas à remplacer les architectes ou les ingénieurs. Il s'agit d'éliminer les parties fastidieuses du travail afin que vous puissiez vous concentrer sur la conception, la résolution des problèmes et la construction de meilleurs bâtiments.
Commencez par utiliser un outil qui permet de résoudre un problème réel auquel vous êtes confronté au quotidien. Une fois que vous aurez constaté les gains de temps et les améliorations de qualité, vous vous demanderez comment vous avez pu vous en passer.
L'IA dans le BIM n'est plus une mince affaire. Les entreprises qui utilisent des outils basés sur l'IA réduisent des semaines de travail manuel, transforment les modèles plus rapidement et fournissent une documentation plus propre. Si vos concurrents accélèrent leur workflow grâce à l'IA, vous vous retrouvez à la traîne en vous en tenant à l'ancienne méthode.